
【値下しました】元町中華街駅徒歩6分、中華料理店居抜きで飲食店開業できる
以前から募集している横浜中華街所在、中華料理店一棟貸し店舗の賃貸条件を大幅に改定しました。関帝廟至近の物件ですので、観光客をターゲットにした中華料理店や土産屋などに最適です。ほかにも、テイクアウト中心の物販店などが考えられます。中華街で出店しませんか?

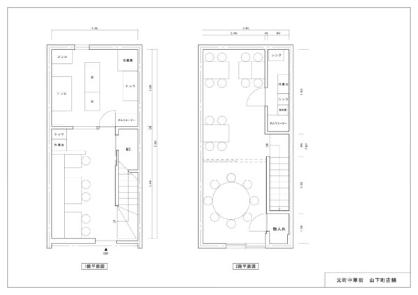
2階は8人掛けの円卓が1つと、4人掛けのテーブルが3つです。

1階は4人掛けのテーブルが2つと、2名掛けのテーブルが1つあります。

ダムウエーターが設置されていますので、2階席へ料理を提供するのにとても便利です。

物件を借りるうえでおおきなウェイトを占める賃料と造作2つの条件を大幅に改定しました。賃料は32万円(坪単価2万円)で、造作は120万円で売却予定でしたが0円にしました。随分と財布に優しい条件になっています。
内見はいつでも可能です。是非お問合せください。
賃貸条件はこちら
最寄駅 みなとみらい線「元町中華街」駅 徒歩6分
住所 神奈川県横浜市中区山下町130-10
階数 1・2階
面積 55.18㎡/16.69坪
保証金 賃料の10ヶ月分
償却 解約時、賃料の2ヶ月分
礼金 賃料の2ヶ月分→ 賃料の1ヶ月分
賃料 350,000円(別途消費税)→ 320,000円(別当消費税)
店舗付属資産料 1,200,000円(別途消費税)→ 無償貸与
契約期間 2年→ 3年
更新料 新賃料の1ヶ月分
更新事務手数料 新賃料の0.25ヶ月分
※保証会社加入義務あり
お問い合わせはお気軽に0120-905-840まで。お待ちしております。





